0
Skip to Content
portfolio
process
about
Open Menu
Close Menu
portfolio
process
about
Open Menu
Close Menu
portfolio
process
about
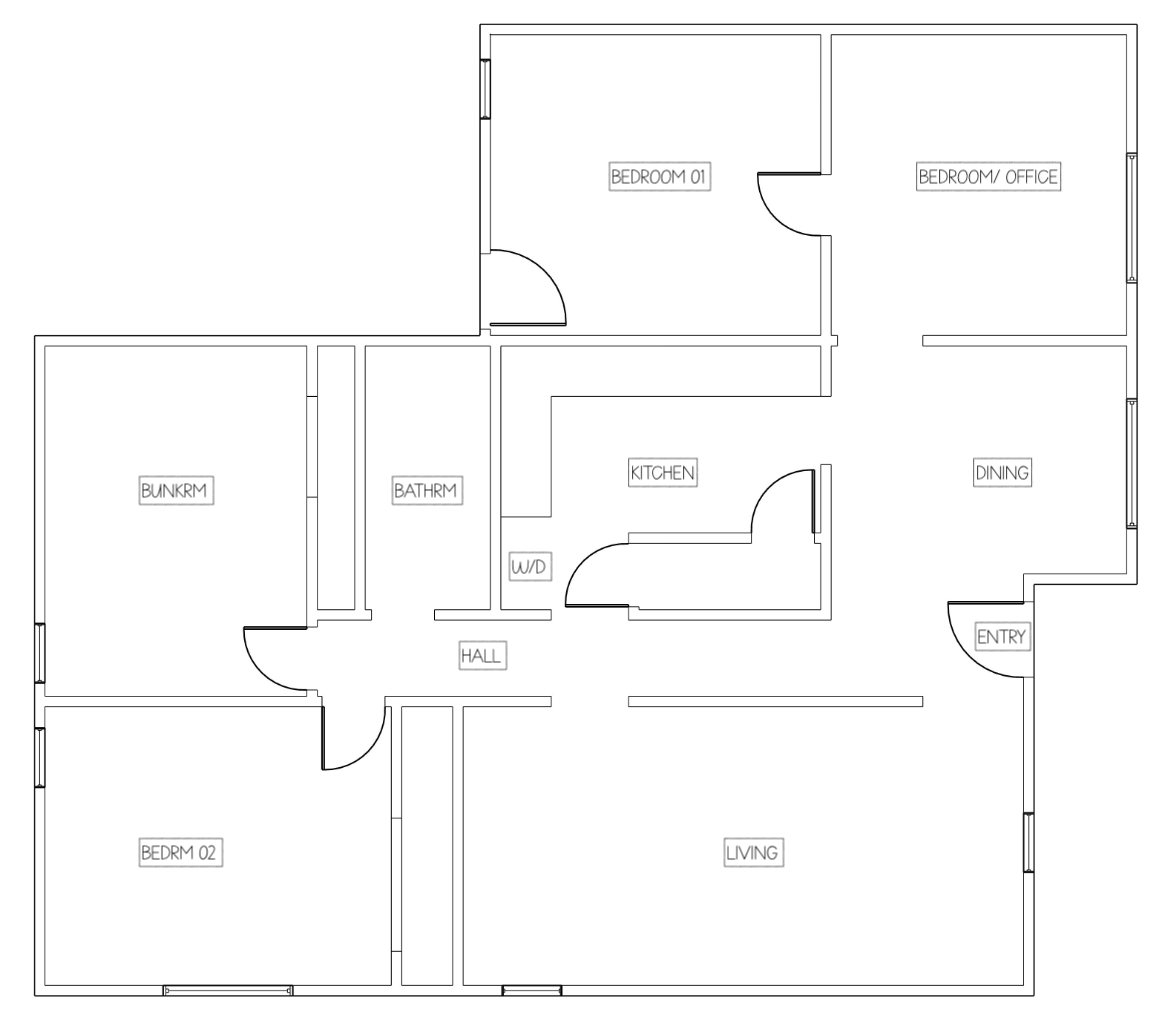
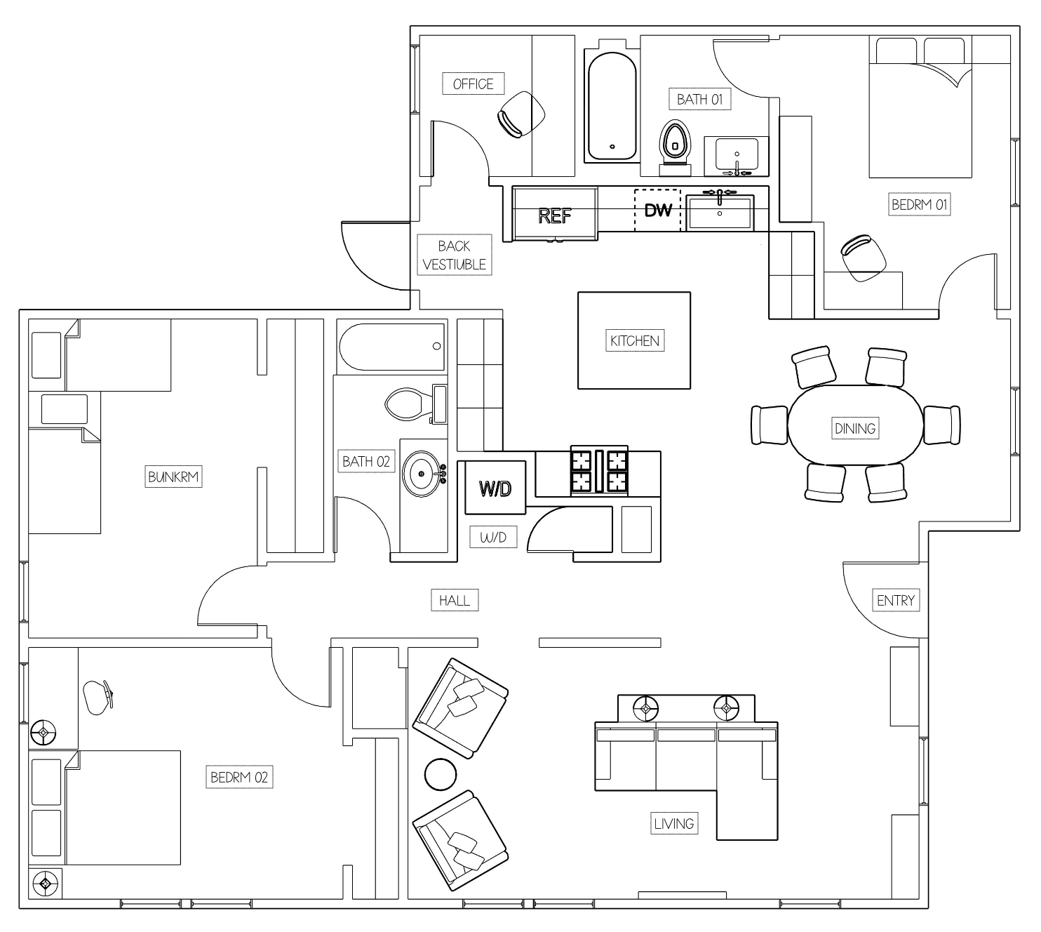
Mission House
Single Family Residence | Renovation | Fort Worth, Texas
before
after